// ACTUALITÉ

Les sanitaires dits « de l’Écluse », situés à l’entrée de la plage de DINARD seront complètement rénovés cet hiver avec remise en état de la façade historique.
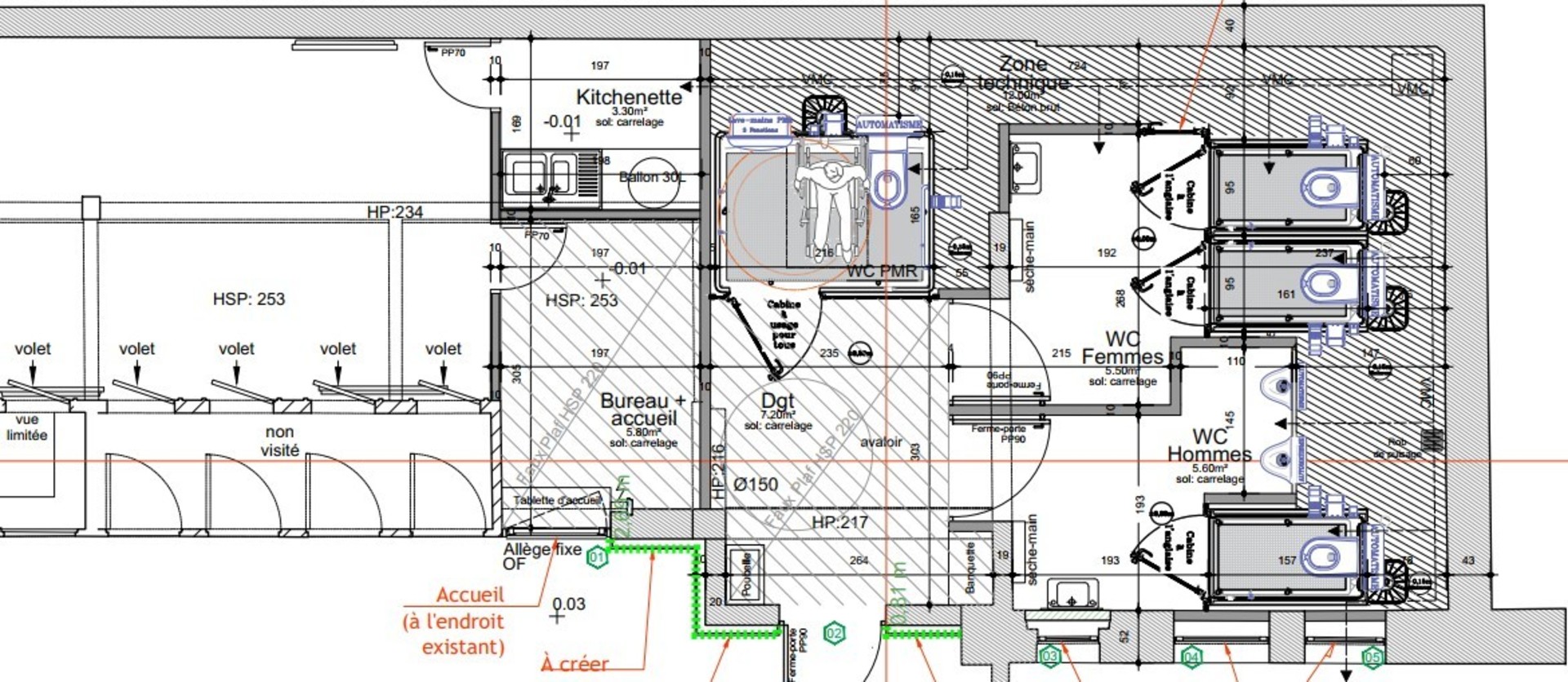
L’opération consiste à démolir les sanitaires et le bureau actuel des bains plages afin de retrouver l’alignement de la façade des cabines de bains. Le bureau d’accueil des bains plages, associé à un local de service, sera en conséquence réintégré dans le volume du bâti historique.
Les sanitaires hommes, actuellement au fond de l’impasse, serons relocalisés à côté des sanitaires femmes, dans le cadre d’un accès unique permettant une accessibilité aisée.
COREVA a remporté le Lot 01 Gros œuvre - Charpente - Menuiseries - Cloisons - Electricité - Plomberie.
MOA : MAIRIE DE DINARD
Architecte : GOURONNEC - ALLAIRE
Date de démarrage : Octobre 2025


