// ACTUALITÉ

La construction d'un restaurant scolaire à Rougé vise à améliorer l'accueil des 160 élèves de la Commune, la cantine actuelle étant trop petite.
Le projet inclut l'achat du bâtiment de l'ancienne école Saint-Joseph, qui sera désamianté et démoli pour la construction de la nouvelle cantine municipale.
La cantine est prévue pour être opérationnelle d'ici fin 2026.
Le lot 2 Gros-oeuvre comprend les prestations suivantes :
- Fondations superficielles, longrines, soubassements béton
- Remblais
- Réseaux sous dallage
- Plancher bas dalle portée
- Elévations en maçonnerie
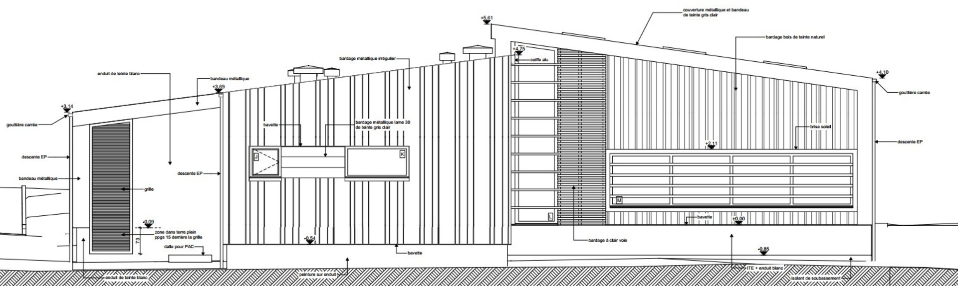
- Enduits en façades
MOA : Commune de ROUGÉ
Architecte : MCM Architectes
Date de démarrage : Janvier 2026



